無印+INFILL 木の家を建てた
ぽておの普通の日記
カウンター
カレンダー
| 12 | 2026/01 | 02 |
| S | M | T | W | T | F | S |
|---|---|---|---|---|---|---|
| 1 | 2 | 3 | ||||
| 4 | 5 | 6 | 7 | 8 | 9 | 10 |
| 11 | 12 | 13 | 14 | 15 | 16 | 17 |
| 18 | 19 | 20 | 21 | 22 | 23 | 24 |
| 25 | 26 | 27 | 28 | 29 | 30 | 31 |
プロフィール
HN:
ぽてお
性別:
男性
職業:
こどものはいしゃ&保育士
自己紹介:
管理人ぽておの日常と木の家を建てるという非日常
カテゴリー
ブログ内検索
フリーエリア
×
[PR]上記の広告は3ヶ月以上新規記事投稿のないブログに表示されています。新しい記事を書く事で広告が消えます。
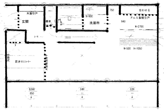
スキャナで取り込んだのですが、
画像がしょぼしょぼで申し訳ありません。
一階の間取りです。
玄関が北西にあり、せまいです・・・。
西から、和室、リビング、ダイニングとキッチンがあります。
和室(ツマのお気に入りスペース)
障子は3枚あるのですが、
すべて玄関の通路の部分に持って行けるため、
完全開放することもできます。
ちなみに、現在は子の段ボール家で埋められてます・・・。
リビングを東西から見た写真です。
今はNOyesで買ったソファが入りました。
キッチンおよびダイニング
ゴミ袋が写ちゃってます・・・(^^ゞ
キッチンは広々して使いやすそうですが、
ぽておはまだほとんどいじってません。
ダイニングのカウンターも使いやすいですが、
ここをすっきりと使うことがぽてお家の目標の一つであります。
お風呂&洗面所
ふつうですね。
洗面所の天井にはホスクリーンをつけました。
現在外構工事中のため、外に洗濯物を干せなくて大活躍。
以上一階でした。
写真にはありませんが、
トイレはリビングに面しているため、
ナショナルの防音ドアをつけました。
これは本当にすごく、
リビングにいても、トイレを流す音が聞こえません。
PR
引っ越し当日。
ぽておは、朝は新居で、前日に組み立てた家具の手直しなど。
ツマは自宅で最終準備。
そうこうしているうちに9時前には
引っ越しのサカイさんが到着。
4人来てくださったのですが、
なんと二人は女性の方。
普通な方でしたが、力持ちでした。
どんどん運び出されていく荷物を横目に、
ツマはアパート掃除に励み、
ぽておも掃除してたような、ただうろうろしてたような・・・。
11時半運び出し終了。
ぽてお家アパートは前の道が狭かったため、
小さめトラック二台が満杯でした。
さて、昼の作業は12時半開始。
ぽておが新居係として、
運び込まれていく荷物の置き場を指示。
どんどん運び込まれ、2時半終了。
サカイさんは丁寧な仕事をしてくれましたよ。
そして、ここから、ぽておが一人で荷ほどき。
どんどん開けて、収納させていく。
5時くらいにはツマも合流して、加速させていく。
最終的に、当日はこんな感じで、段ボールがたまりました。

50個以上はあると思います。
ぽておは、朝は新居で、前日に組み立てた家具の手直しなど。
ツマは自宅で最終準備。
そうこうしているうちに9時前には
引っ越しのサカイさんが到着。
4人来てくださったのですが、
なんと二人は女性の方。
普通な方でしたが、力持ちでした。
どんどん運び出されていく荷物を横目に、
ツマはアパート掃除に励み、
ぽておも掃除してたような、ただうろうろしてたような・・・。
11時半運び出し終了。
ぽてお家アパートは前の道が狭かったため、
小さめトラック二台が満杯でした。
さて、昼の作業は12時半開始。
ぽておが新居係として、
運び込まれていく荷物の置き場を指示。
どんどん運び込まれ、2時半終了。
サカイさんは丁寧な仕事をしてくれましたよ。
そして、ここから、ぽておが一人で荷ほどき。
どんどん開けて、収納させていく。
5時くらいにはツマも合流して、加速させていく。
最終的に、当日はこんな感じで、段ボールがたまりました。
50個以上はあると思います。
引き渡し当日の出来事です。
朝から2−3時間はかかりますよ〜〜って言われていたので、
なにをするんだろう、
どれだけ、書類にサインをすればいいんだろうって思いながら、現地へ。
テープカットがありますので、といわれ、
準備されたのが、
紅白テープ、白手袋、はさみ、
テープの両側を営業さんと、監督さんが持ち、
われわれ二人が切るというもの。
そういえば、ながやさんが撮った写真群、送ってくださいね。
さて、家の中に入り、
まず待っていたのが、キッチンと、お風呂、床暖房の説明。
それぞれの業者さんが控えていて、説明してくれた。
書いた書類は一枚だけ、
あとは、監督さんと細かい打ち合わせのみ。
正味1時間くらいで終わりました。
あれ?
でも、その間にも、
われわれが用意したネットを手すりにつけてくださいという
厚かましいお願いを社員総出でつけてくださり、


社員3人で1時間以上かかってつけてくださいました。
本当にありがとうございます。
几帳面な営業さんのおかげで、きれいにつきました。
編み目の数まで、きっちりそろってます。
そして、社長さんも来ていたのだが、
社長さんには申し訳ないことに、
届いた家具の組み立てまで手伝っていただきました(^^ゞ
いやいや、本当にありがとうございます。
というわけで、12時過ぎには終了。
午後は、新居の掃除。
引っ越しの最終段階の準備。
見学客の応対。
家具の組み立て。
あっという間に夜。
朝から2−3時間はかかりますよ〜〜って言われていたので、
なにをするんだろう、
どれだけ、書類にサインをすればいいんだろうって思いながら、現地へ。
テープカットがありますので、といわれ、
準備されたのが、
紅白テープ、白手袋、はさみ、
テープの両側を営業さんと、監督さんが持ち、
われわれ二人が切るというもの。
そういえば、ながやさんが撮った写真群、送ってくださいね。
さて、家の中に入り、
まず待っていたのが、キッチンと、お風呂、床暖房の説明。
それぞれの業者さんが控えていて、説明してくれた。
書いた書類は一枚だけ、
あとは、監督さんと細かい打ち合わせのみ。
正味1時間くらいで終わりました。
あれ?
でも、その間にも、
われわれが用意したネットを手すりにつけてくださいという
厚かましいお願いを社員総出でつけてくださり、
社員3人で1時間以上かかってつけてくださいました。
本当にありがとうございます。
几帳面な営業さんのおかげで、きれいにつきました。
編み目の数まで、きっちりそろってます。
そして、社長さんも来ていたのだが、
社長さんには申し訳ないことに、
届いた家具の組み立てまで手伝っていただきました(^^ゞ
いやいや、本当にありがとうございます。
というわけで、12時過ぎには終了。
午後は、新居の掃除。
引っ越しの最終段階の準備。
見学客の応対。
家具の組み立て。
あっという間に夜。
